Rumah Siap Huni, Hunian Nyaman dan Rumah BARU @The Place Residence, Jagakarsa

Jakarta Selatan, DKI Jakarta


Rumah for Sale

Price : Rp 2,35 M

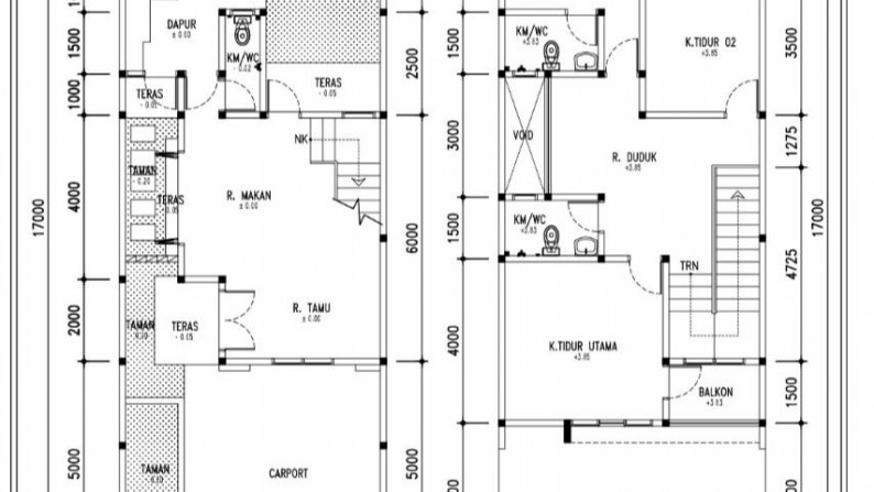
Rumah dengan spesifikasi, sebagai berikut :
KT : 4+1
KM : 3+1
2 Lantai
Hadap Timur
Listrik 3500 watt
Air Jet Pump
Carport 2 Mobil
LT : 110
LB : 180

Available 5 Unit
Surat : SHM
nego


Specification

Live ID : L16885876
Listing ID : 291231
Building Size : 180 m2
Land Size : 110 m2
Bedroom : 5
Bathroom : 4
Carport : 0

Facilities

  • Jet Pump