Apartemen 2 unit studio direnovasi menjadi 2 bedroom, ada 2 balkon, full furnish, The Crest West Vista Puri

Jakarta Barat, DKI Jakarta


Apartemen for Sale

Price : Rp 1 Miliar

Apartemen The Crest, West Vista Puri, Duri Kosambi
Full furnish, rapi, masih tersewa

- Apt lantai 6
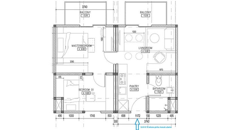
- Luas 64m2
- 2 kamar tidur, 1 kamar mandi
- 3 AC
- Sertifikat : PPJB

Kode PAP : J03-J8110


Specification

Live ID : L40328417
Listing ID : 526847
Building Size : 64 m2
Land Size : 0 m2
Certificate : PPJB
Bedroom : 2
Bathroom : 1
Carport : 0